

The Original Architects Concept
St. Kilda Waterways is an Eco-Village designed on an existing Dairy Farm site in Cambridge. It is an 87 hectare, 285 House Eco-Village Development with average lot sizes of 1200m2 – 1500m2 and larger homes of minimum 200m2. St. Kilda was designed to be the first Sustainable Design concept of its scale and nature to be built in New Zealand. Its unique features included 4 Lakes which have a dual purpose of being aesthetically pleasing and providing storm water control/storage. A Central Park linking the 2 largest Lakes, 9km of safe, secure dedicated walkways and cycleways, an Enviroschool Kindergarten and Cafe with live video feed to the Maungatautari Ecological Island Reserve, including the Kiwi Programme. Design Engine Architects were the Urban Designers and Architects for this pioneering project that established a new benchmark for living in New Zealand. The development draws its inspiration from International Eco-Village examples, the Waitakere City Council Sustainable Design Guidelines and the Environment Waikato Sustainable Design Framework. The Clients Matt and Mike Smith of Grantchester Farms Ltd are a well established Cambridge Family that are passionate and dedicated to their Home, Context and Future of the Development. Mark Wassung and Abigail Wassung were an integral part of Plan Change 58 introducing the interweaving of Architecture, Urban planning and Landscape Architecture into one cohesive vision that enabled this subdivision to be approved and successfully completed.

ARCHITECT’S DESIGN
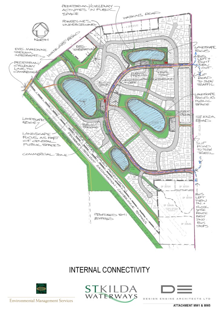
Design Engine Architects and Urban Designers have created a unique concept with the use of organically shaped roads, reduced cul-de-sacs, safety slip roads, changes in surface materials to slow vehicular traffic and protect the pedestrian/cyclist. Walkways and Cycleways create good internal connectivity which are in turn connected to a broader context of neighborhood walkways/cycleways and Cambridge CBD creating good external connectivity. The Design Covenant setup by Design Engine Architects refers to our 10 Point Sustainable Design Green Plan for Subdivisions and Architecture. The underlying principles include the following: obligatory rainwater collection with water storage tanks, photovoltaic cells on the roof for electricity production, solar hot water heating, the long axis of the house orientated to optimise the North aspect, passive solar control, good natural ventilation, recycled grey water for toilet flushing and garden irrigation, double glazing and increased insulation. There is a deliberate attempt with this design to avoid the monotonous, repetitive, brick and tile suburbs that have been allowed to proliferate in New Zealand over the last decade. Streets dominated by “Garage Architecture” are prohibited. The Garage has to be integrated into the composition of the House, hidden or discreetly placed. The Street is given back to the pedestrian/cyclist, boundary walls are discouraged with an emphasis on transparency and natural surveillance, landscaping and a sense of community.


Green ‘community precinct’
An innovative new development is committed in its quest to be the highest green-rated
subdivision in New Zealand.
St Kilda Waterways, just outside the town of Cambridge, is an 88 hectare residential property development that aims to combine energy conservation and sustainable design within a premium lifestyle environment. Everything from landscaping and on-site amenities to how the homes will be heated is taken into consideration in the creation of what developers hope will ultimately be a carbon-neutral development. Co-founder Matt Smith says, ‘We want St Kilda Waterways to be the highest greenrated subdivision in New Zealand. That includes ensuring each house is designed to the equivalent of a 6 Green Star Rating.’
Design Council approval process New Zealand’s Green Building Council is still finalising its rating system for residential homes, but Matt believes he’s on the right side of global trends and is certain the homes in St Kilda Waterways will be leading examples for homeowners throughout the country. Homes built at St Kilda Waterways will undergo approval by the development’s design council. The council will work with homeowners from the beginning of their design and planning process to ensure house plans meet the development’s energy-efficient principles. Minimum building standards at St Kilda Waterways will include:
❚ each home’s main living areas to face north
❚ walls constructed with 140 mm timber framing and R3.6 insulation
❚ glazing to be R0.47
❚ resource-efficient heating in all spaces
❚ hot water technologies reducing primary fuel consumption by at least 50%
❚ energy-efficient lighting inside and out
❚ minimum 5 Energy Star rating for appliances. Each house will have a rainwater tank of at least 10,000 litres, a greywater recycling system and at least 1 kW of power generation (solar or wind).
Site coverage on the average 1,600 m2 site will be limited to a maximum of 700 m2 so that the subdivision can remain stormwater neutral.

Original Concept Design Team
Client: Matt and Mike Smith of Grantchester Farms Ltd
Architect: Design Engine Architects – Registered Architect Mark Wassung and Abigail Wassung
Planner: Environmental Management Services – Mark Chrisp
Surveyor: Cogswell Surveys – Phil Cogswell
Engineers: Beca Carter Engineers – Dean Hermann
Lawyer: Russell McVeagh – Bal Matheson – Allison Arthur Young


Cambridge’s St Kilda receives top award
Sunday, 8 June, 2014
Cambridge residential development, St Kilda, won the Natural Habitats Landscapes Urban Land Developments category at Friday night’s 2014 Property Council New Zealand Rider Levett Bucknall Property Industry Awards in Auckland
The judges agreed that St Kilda is unlike any other subdivision in New Zealand.
Developed with a dual focus of community and the environment, the winning features of the subdivision include spacious sections with over 20% of the development covered in wetlands, reserves, walkways and cyclepaths.
At the awards on Friday night, the judges recognised the sustainable landscape design and the efficiency of construction that made up the project. St Kilda developer, Matt Smith says he’s delighted.
“We are extremely honoured to receive such a prestigious award from Property Council New Zealand. We were up against some very tough competition and winning is a testament to the great team we have, working on the project.
“This award is a great boost to everyone’s efforts and makes us even more determined to ensure that excellence continues to be an integral part of our development and the way we work.”
Stage 1 of the development is completed with Stage 2 underway. The first sections at St Kilda were sold earlier this year, with several homes now under construction. The sub-division includes 80 hectares of land with 285 sections and a 67-villa and 80-bed hospital care facility built by Bupa on site.
The subdivision sections are designed to deliver a feeling of space for the owners but still offer access to an environmentally responsible subdivision to the community. With clear but flexible building guidelines, the development encourages homeowners to utilise sustainable and energy efficiency principles.
The PCNZ awards are one of New Zealand’s most prestigious property industry awards. They celebrate excellence in property development throughout the country. Entries go through a rigorous, 12-week process in which a panel of judges reviews each submission, setting it against detailed criteria.

Materials

PROJECT STATUS
Design Engine Architects were required to give Evidence as Expert Witness at a Hearing in October 2008 for a Zone Change from Rural to Residential. Project Successfully Completed.



