Raniuru Log Transfer Station and Methyl Bromide Capture
KOPURERERUA FOREST LAKE PARK TAURANGA CITY COUNCIL ANNUAL PLAN PRESENTATION 2020
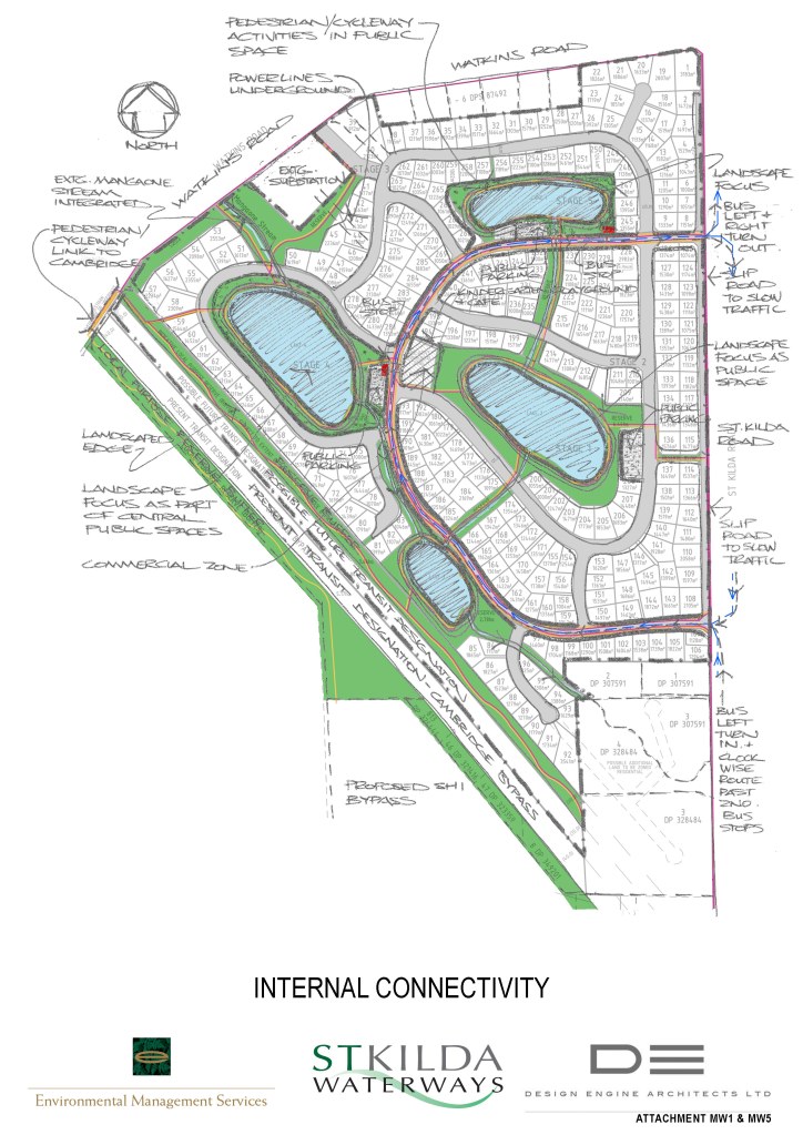
Kopurererua Valley was occupied by Maori for centuries before the Europeans arrived in Tauranga to settle on confiscated land in the 1800’s. The valley once an Estuary is now a wetland. Settlers drained the valley, engineers straightened the river to become just a drain. The flooding continued and farming proved difficult. That was in the 1900’s. In the 1960’s the Tauranga City Council planned to fill in the whole of the Waikareao Estuary for low cost housing and a Rowing Course. In 1974, I was elected to the Tauranga City Council and in 1976 the filling in of the Waikareao Estuary appeared as an item on the Council Agenda. This was a shock to me! But I should not have been too surprised as I had won my council seat on a campaign against the reclamation of 80 hectares of Tauranga Harbour at Sulphur Point although by now it was a fait accompli. I nevertheless persuaded the City Council and the Harbour Board to reverse the Industrial B Zoning on the newly created land right at the City Entrance and zone a large section on the west side for housing or recreation. In this case my Council killed the Waikareao Estuary Reclamation dead. But it got me thinking that a 2000 metre Rowing Course could fit into the Kopurererua Valley wetlands and form very necessary flood control. The excavated material then used to raise the land for planting. I researched the valley and found many disturbing things there in my walks up and down the valley. The river drain, a hospital sewage pond, a rubbish tip, widespread degraded paddocks, fence lines, cross drains, gorse, blackberry and many exotic trees. I then prepared and presented a four page report with drawings to the Town Planning Committee which together with the City Engineers report recommended that the valley become a recreational reserve and to include flood control and this was approved in principle. On 15 August 1976 a further recommendation was made to acquire all the farmland in the valley. My report also included a major sports stadium be built on land built up with excavated material but this item could only be approved if the playing fields be at least built to the same standard as the Domain. Likewise the Rowing Course was not practical due to the low flowthrough. After due process we had in 1980 a Kopurererua Valley Park. I left council in 1980 after serving two terms. Twenty odd years later a major expressway was under construction through the valley. There was a Ngai Tamarawaho led Design Concept developed for the entire Valley Reserve in 2004. This was adopted by TCC and the establishment of Kopurererua Valley Trust followed. It included many of the features of my 1976 plan but added more valuable historic and cultural references. I was happy with this and in that both Council and the Trust were reversing many of the environmental and cultural mistakes of the past. I made submissions to the Council on this subject in 1986, 1997, 2007, 2017 and now in 2020 advocating lakes and native plantings and bike/walking trails and many recreational and social features. Four Rotary Clubs from 2004 have done extensive work planting 250,000 trees and shrubs (I volunteered on several planting days) and Rotary must be congratulated. Council also has done some very good engineering and landscape work and are also to be congratulated. But I believe the work can be intensified and accelerated by using Government funding for ‘shovel ready’ projects that meet most of the criteria to free up millions of dollars to create work for hundreds of New Zealanders in this time of crisis. I urge Council to make application to the Government for a minimum of $10 million funds to be employed from this August for training nurseryman, carrying out cutter suction dredging, landscaping, engineering, designing and recruiting hundreds of planters all before the planting season next summer. Part of the imperative is Government’s drive to plant a billion trees for carbon sequestration, and the need to recover the economy severely damaged by the Covid-19 pandemic. To raise money for employment in cultural, environmental and social projects on a vast scale. Our project could commence in August on the 50 hectare raised land on the west bank of the K-Valley known as Cambridge Park and Smiths Farm. This section is capable of supporting 20,000 trees! Together with deepening one of the five Lakes proposed. A natural Lake has formed at the base of the old tip site which if dredged to say 1.5 metres deep and the slurry piped to wherever the design requires a build-up of land above the water table and to as act as preloading in preparation for more planting of forest trees. The combination of Forest trees and Lakes with ‘forest clearings’ left accessible to the many off street access points. The ‘clearings’ are available as sites for say a grassy playground, or historic display, or a wedding venue, or picnic areas, or event areas, or a café, or a cultural centre, or a model village, or a traditional garden, or for the many other possibilities at the discretion of future park management. A future sports stadium is shown on the south.
RESIDENTIAL
Design Director at EJ Solutions focusing on raising the standard of communication online. She has been leading several award-winning branding projects including Strn.
COMMERCIAL
Senior Product Designer at Vaxx and is responsible for transforming UX across the company’s products. Previously, he held leadership roles at TypeTester.
INFRASTUCTURE AND URBAN REGENERATION
DFDSFsssss
.
HEALTHCARE
Senior Product Designer at Idea. Previously Senior Design Director at Minova, UX Design Manager at Ryman. Elise’s work has been featured as pioneer in CX as best practice.
CONSTRUCTION
FDFGFDGDFsfdgzdfgzfgfgfgdfgd



















































































